verbouw en renovatie woning Oudega W

Datum : 28-05-2010
Opdrachtgever : Roald & Wia Buma
Status : Gereed

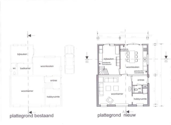
In Oudega W wordt door de opdrachtgever in eigen beheer een bestaande woning geheel in traditionele stijl gerenoveerd (beschermd dorpsgezicht). In de zomer van 2010 is gestart met het vervangen van de beganegrondvloer en de buitengevels. Eind 2010 is gestart met het vervangen van de gehele kap. Zomer 2011 zal het achterste gedeelte met platdak geheel worden vervangen + uitgebreid.

BBT heeft voor het ontwerp en de benodigde bouwvergunning gezorgd.

Foto’s